
住宅営業戦略システム
ALTA Revolution
Scroll
構造伏図を自動作成
宮川工機と共同開発した自動伏図エンジン
作成したプランから伏図を自動作成し、3Dでも確認できます。土台や母屋、小屋束等の部材毎でも自動入力が行えます。
プレカット加工機のトップシェアである宮川工機と共同開発したエンジンにより、プレカット工場独自の設定を基にした構造伏図の作成が簡単に行えます。
-
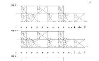
1階床伏図・2階床伏図・1階小屋伏図
-
軸組断面図
安心・便利なアシスト機能で
生産性を向上
伏図のエラーチェック
伏図のエラーチェック(伏図入力時に発生する部材の干渉、卍掛け、片持ち梁、定尺オーバー、金物工法の干渉チェック等)を自動で行えます。
該当箇所は3Dでもわかりやすく確認でき、入力ミスを大きく軽減します。
エラー箇所を3D画面で強調表示
部材の自動調整
部材を入力・削除する際は自動アシスト機能が有効となり、関連する要素同士の「結合」や「分割」等を自動的に実行します。
横架材端部の伸び返りの自動調整や横架材入力時の相手材の自動分割、削除時の両側の横架材の自動結合等、伏図作成の生産性を大きく向上します。
構造計算による
正確な梁せい算定
構造計算ソフト「KIZUKURI」のエンジンを搭載
多くの構造設計事務所等で利用されている木造建築物構造計算ソフト「KIZUKURI」のエンジンを搭載。
構造計算(許容応力度法)による梁せいを算定でスパン表よりも正確に梁せいを算出できます。
近年、ニーズが増えている大空間にも対応可能です。
梁せい算定根拠や
構造計算書等を出力
木造建築物構造計算ソフト「KIZUKURI」との連動
木造建築物構造計算ソフト「KIZUKURI」の連動で、梁せい算定根拠や2020年3月に施工された改正建築士法により、保存が義務化された構造計算書等を出力できます。
精度の高い自動木拾い処理
木拾いの時間と手間を削減
プレカットCADと同等の機能を持ちながらもプレゼンソフトの抜群の操作性と処理スピードを実現。
プレカットCADのように難しい知識は必要なく、時間と手間を掛けずに木拾い積算が行えます。
金物工法対応で
積算精度を向上
作成したプランを自動積算
タツミ社の金物の自動配置と積算が行えます。
また、積算精度向上のために、柱脚柱頭のホゾパイプの干渉等を考慮した配置が自動で行えます。

















